PAIX 54-3
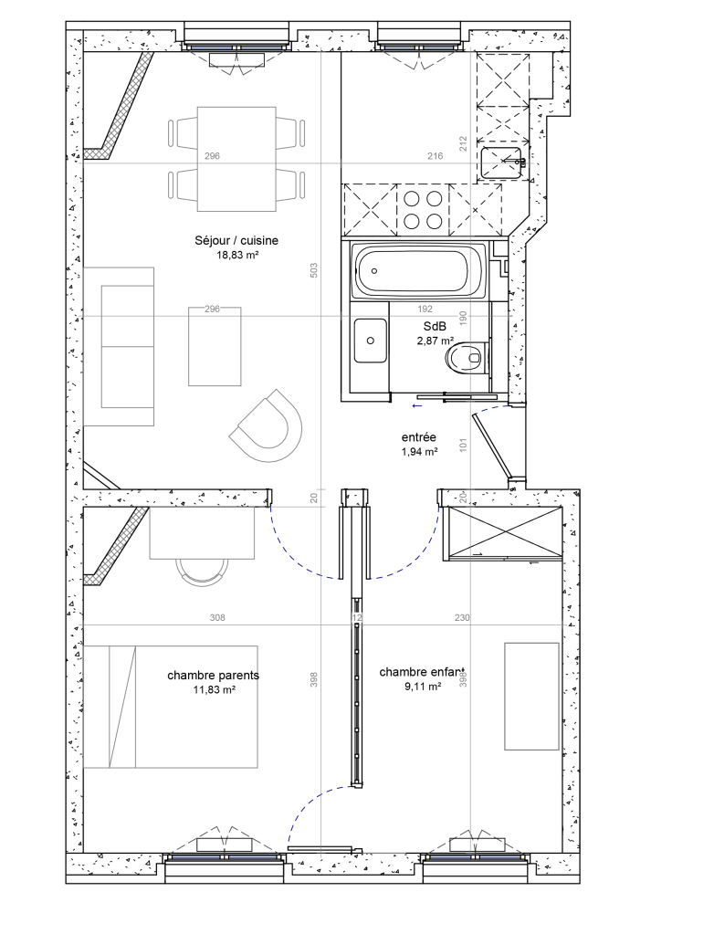
Rénovation intérieure complète d’un petit appartement Vincennois pour une jeune famille.
Réflexion sur l’optimisation des circulations, de l’éclairage naturel et des vues vers l’extérieur.
Mission(s) : complète
Surface : 45m²
Localisation : Vincennes, France
Maîtrise d’ouvrage : particulier
Entreprises : Nouveau Bat
Statut : livré (2020)


















Avant / Après
Faîtes glisser pour rénover !








