PAIX 54-2
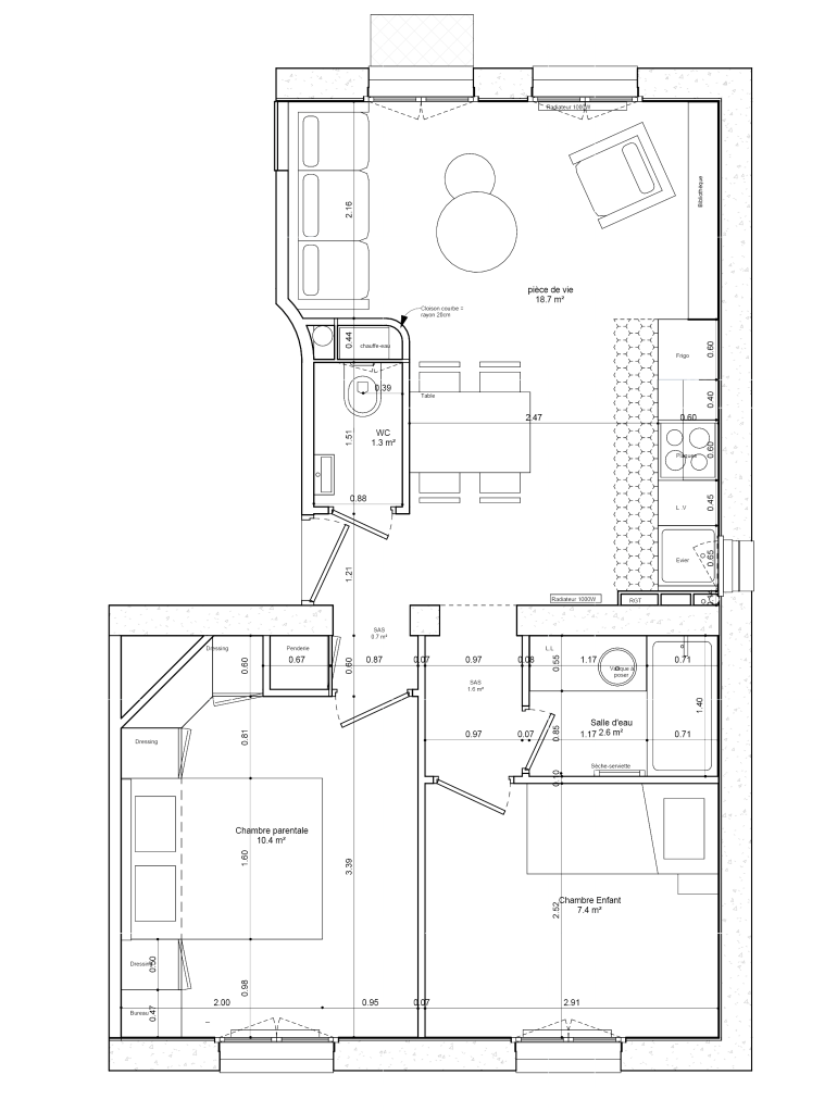
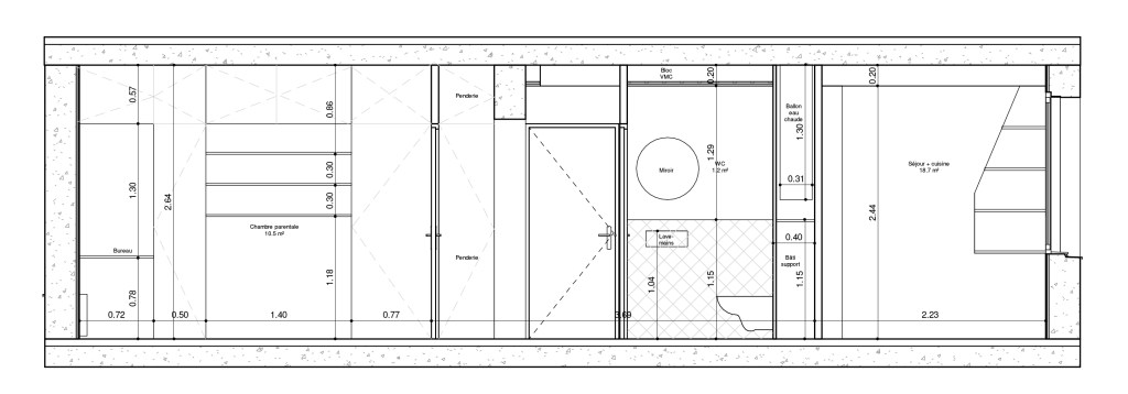
Rénovation intérieure d’un petit appartement en région parisienne pour un couple avec jeune enfant.
Optimisation des surfaces et des fonctions avec la réalisation de rangements menuisés sur-mesure.
Mission(s) : complète
Surface : 43m²
Localisation : Vincennes, France
Coût travaux : 47k€ HT
– hors mobilier & décoration –
Maîtrise d’ouvrage : particulier
Entreprises : Bat’Inov
Statut : livré (2021)









Avant / Après
Faîtes glisser pour rénover !








