ABBESSES
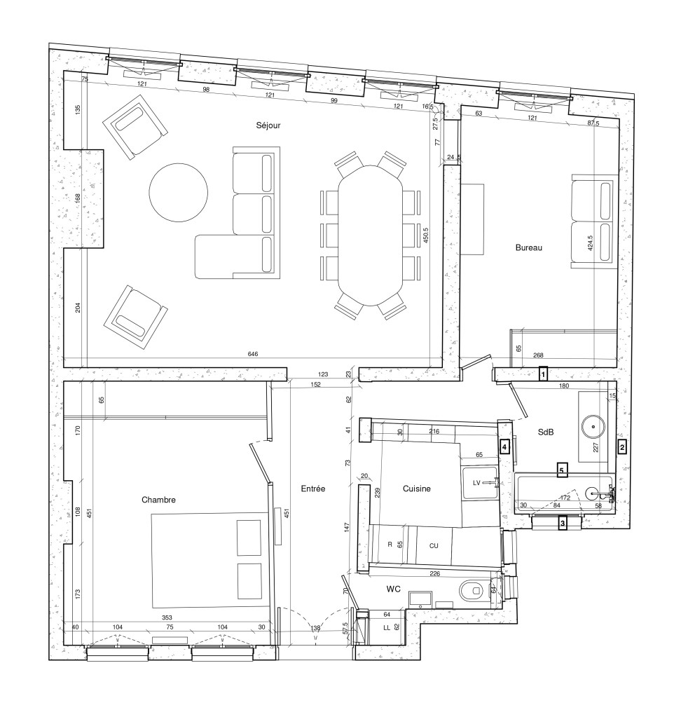
Rénovation intérieure complète d’un appartement Haussmannien au coeur de Montmartre pour une jeune avocate. Création de deux chambres et rénovation énergétique par le remplacement du système de chauffage et des menuiseries extérieures.
Mission(s) : complète
Surface : 80m²
Localisation : Paris, France
Coût travaux : 77k€ HT
– hors ameublement ni décoration –
Maîtrise d’ouvrage : particulier
Entreprises : Bat’Inov, 2f btp
Statut : livré (2021)















Avant / Après
Faîtes glisser pour rénover !








